Công ty xây dựng Nguyên giới thiệu mẫu Biệt thự sân vườn mini diện tích 140m2 thiết kế 3 phòng ngủ được thiết kế theo kiến trúc châu âu hiện đại với mặt tiền được thiết kế kính cường lực tạo vẽ sang trọng cho ngôi biệt thự. Bên trong nội thất được thiết kế đúng chuẩn Châu Âu mang dáng vẽ sang trọng.
Với mẫu thiết kế biệt thự vườn đẹp như thế này, chúng tôi hi vọng rằng sẽ mang đến cho bạn những sản phẩm thiết kế nhà đẹp, ấn tượng và phù hợp với chi phí xây dựng của nhiều gia đình hiện nay. Trong suốt quá trình thi công và làm việc, Công ty xây dựng Nguyên luôn cố gắng đem đến những sản phẩm thiết kế nhà ở ấn tượng nhất.
Chi phí xây dựng và hoàn thiện mẫu thiết kế Biệt thự sân vườn được đưa ra khá phù hợp với diện tích, thực tế xây dựng hiện nay ở nhiều công trình. Đối với khách hàng, hi vọng rằng những sản phẩm thiết kế của Công ty xây dựng Nguyên sẽ thực sự khiến bạn hài lòng và ưng ý.
Thiết kế mẫu biệt thự vườn mini


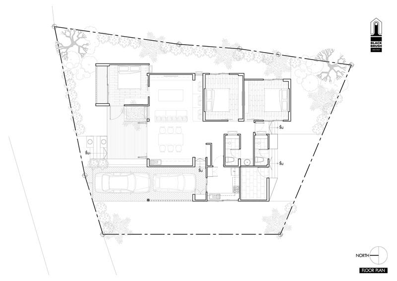
Bố Trí nội thất ngôi biệt thự 140m2






Trên đây là một mẫu biệt thự sang trọng được ưa chuộng và đưa vào xây dựng trong thời gian gần đây. Công ty xây dựng Nguyên luôn tự hào là đơn vị thiết kế – thi công và xây dựng uy tín, đặc biệt là biệt thự sang trọng.
Chúng tôi luôn cẩn thận và tỉ mỉ trong từng chi tiết thiết kế. Nếu bạn cũng là người ưa thích những chi tiết thiết kế cuốn hút và đẳng cấp của Công ty xây dựng Nguyên, hãy liên hệ với chúng tôi để tham khảo các thông tin khác về thiết kế và nội thất khác của chúng tôi.
Bài Viết Liên Quan
- Những Mẫu Thiết Kế Biệt Thự Nhà Vườn Đẹp Hiện Đại…
- Mẫu Biệt Thự Sang Trọng Đẳng Cấp Khiến Ai Cũng Mê…
- Mẫu Biệt Thự Phong Cách Cổ Đại Đẹp Ngây Ngất
- Mẫu Biệt Thự Phong Cách Hiện Đại Đẹp Cuốn Hút
CÓ THỂ BẠN QUAN TÂM
Tổng Hợp 52 Mẫu Nhà Cấp 4, Mẫu Nhà Cấp 4 Sân Vườn Mặt Tiền 5 Met – 10 Met 2026
Tổng Hợp 40 Mẫu Nhà Ống 1 Trệt 2 Lầu Mặt Tiền 4 met, 5 met, 6 met Thiết Kế Hiện Đại 2026
Tổng Hợp 44 Mẫu Nhà 1 Trệt 1 Lầu, Mẫu Nhà 2 Tầng Mặt Tiền 4 Met, Mặt Tiền 5 Met, Mặt Tiền 6 Met Mới 2026
Tổng Hợp 22 Mẫu Biệt Thự Vườn 2 Tầng Mái Nhật – Mái Thái Thiết Kế Hiện Đại
Mẫu Biệt Thự Vườn Mái Thái 2 Tầng Diện Tích 14x10m – Thiết Kế 4 Phòng Ngủ Sang Trọng & Tiện Nghi
Tổng Hợp 38 Mẫu Nhà Cấp 4 Mái Nhật Diện Tích 120m2 – 160m2 Thiết Kế Hiện Đại