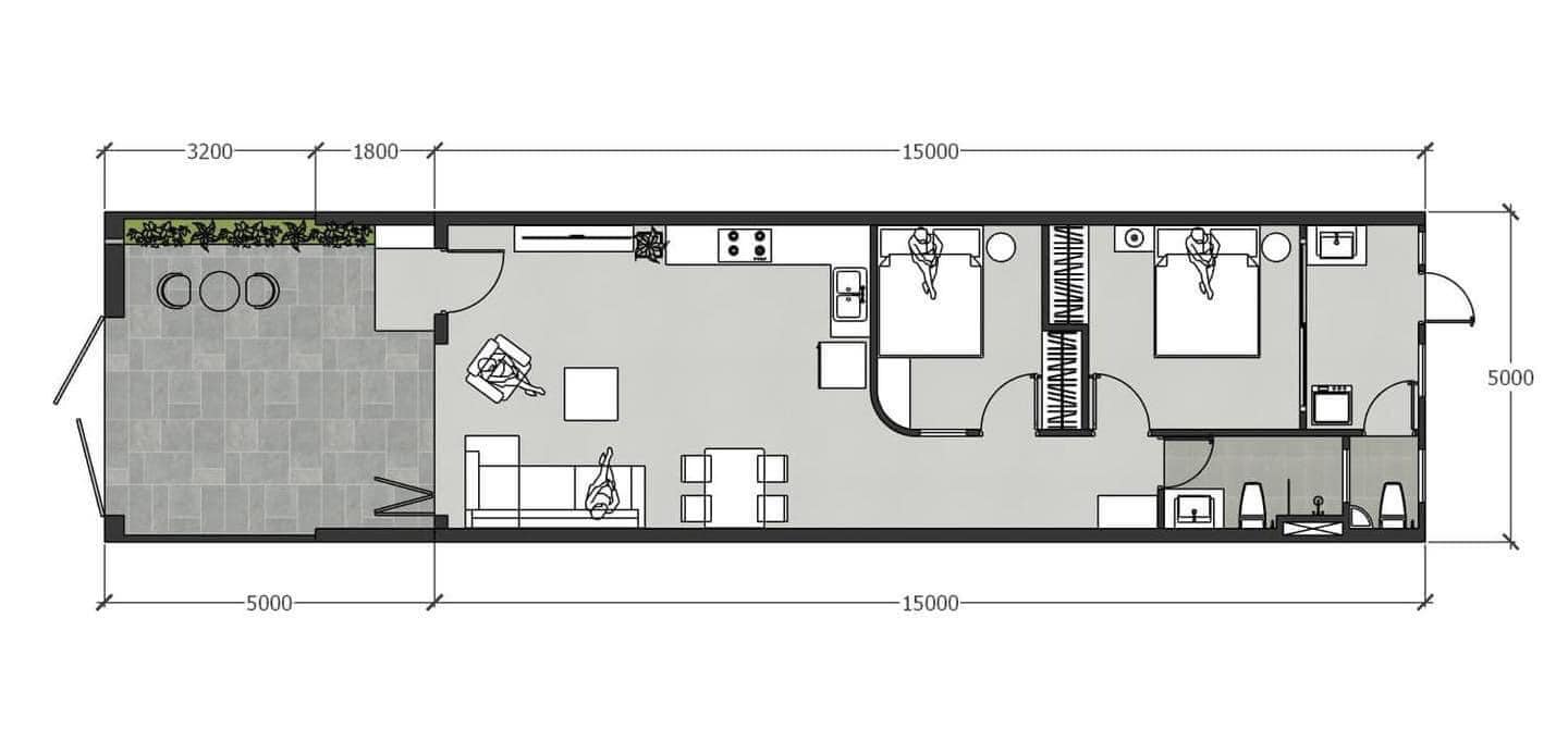
Công ty xây dựng Nguyên giới thiệu Mẫu nhà cấp 4 diện tích 5x15m 2 phòng ngủ hiện đại, được thiết kế trên khuôn viên đất 5x20m, với diện tích xây dựng 5x15m được bố trí công năng 2 phòng ngủ, 1 phòng khách rộng 40m2, bếp được bố trí để tiết kiệm diện tích cho ngôi nhà thiết kế hiện đại.
Với mẫu nhà diện tích 5x15m được nhiều khách hàng yêu cầu thiết kế, thích hợp cho những ngôi nhà phố khu dân cư đông, sân trước nhà được thiết kế đủ để 1 xe ô tô. kết hợp trồng thêm canh xây giúp ngôi nhà thêm mát mẽ.



Bố trí công năng 2 phòng ngủ 1 khách, 1 bếp

Nội thất phòng khách

Nội thất khuôn viên bếp và khách




nội thất phòng ngủ
Công ty thiết kế thi công xây dựng Nguyên cung cấp dịch vụ xây nhà trọn gói chuyên nghiệp từ dịch vụ tư vấn thiết kế, thi công xây dựng trọn gói nhà phố, thi công biệt thự, nhà cấp 4, nhà cấp 4 mái thái hoàn thiện nội thất với đội ngũ kiến trúc sư, kỹ sư giỏi và thợ xây dựng có nhiều năm kinh nghiệm nhiều năm trong Nghề, sẽ mang đến cho quý gia chủ một ngôi nhà đẹp như ý.
CÓ THỂ BẠN QUAN TÂM
Mẫu Biệt Thự 2 Tầng Mái Nhật Diện Tích 18x16m Thiết Kế 4 Phòng Ngủ
Mẫu Nhà Cấp 4 Mái Nhật Diện Tích 10x15m Thiết Kế 3 Phòng Ngủ
Mẫu Nhà Cấp 4 Mái Lệch Nông Thôn Diện Tích 7x8m Thiết Kế 2 Phòng Ngủ
Mẫu Nhà Ống 1 Trệt 1 Lầu Diện Tích 6x7m Thiết Kế 3 Phòng Ngủ Nhỏ
Mẫu Nhà Cấp 4 Diện Tích 10x20m Thiết Kế 3 Phòng Ngủ Có Hồ Bơi Nhỏ
Mẫu Nhà Cấp 4 Diện Tích 9X10m Thiết Kế 3 Phòng Ngủ