Công ty xây dựng Nguyên giới thiệu Mẫu thiết kế nhà phố 1,5 tầng diện tích 7x17m đây là mẫu thiết kế nhà 1 trệt 1 lầu hình chữ l phong cách kiến trúc nhà ống hiện đại 7×14 thiết kế dành cho 2 vợ chồng trẻ và 1 con có 2 phòng ngủ kiến trúc nhà ống hiện đại 1.5 tầng đơn giản tiết kiệm bên phải có sảnh để được ô tô. Diện tích xây dựng tầng trệt của mẫu nhà đẹp 2 tầng 7×14 là 90m2 tầng lầu 50m2 kinh phí khoảng 700 triệu công ty xây dựng Nguyên chúng tôi mời quý vị cùng tham khảo.

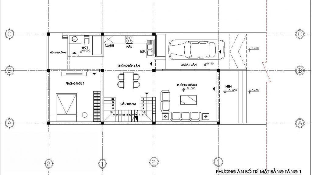
Kích thước xây dựng 7×17 hình dáng chữ l bỏ qua phần sân làm nơi để xe phía ngoài thiết kế có diện tích sàn tầng trệt 80m2, đặt vào trong công năng sử dụng phòng khách thoáng rộng song song gara để xe, phía sau nhà phố hiện đại 7x17m là phòng bếp + bàn ăn, hoàn toàn là thiết kế mở nối với phòng khách trước làm lối đi kết nối các phòng trước sau, cầu thang lên tầng, và cũng là vị trí cửa phụ góc chữ l đi vào.
Bếp hình chữ l tận dụng ánh sáng từ mặt tiền đi vào qua cửa sổ lớn là bồn rửa, bếp nấu và tủ lạnh đặt thẳng theo hướng sáng. Phía sau đặt 1 phòng ngủ nhỏ, và khu vực vệ sinh chia thành phòng vệ sinh tắm rửa và sàn gia công cửa phụ ra vào sân sau 1m, cầu thang lên tầng làm lớn tạo thành giếng trời thông tầng lấy sáng trong, phòng khách sofa đặt đón sáng từ mặt tiền vào phía bên vào trong.

Thiết kế mặt bằng tầng 1

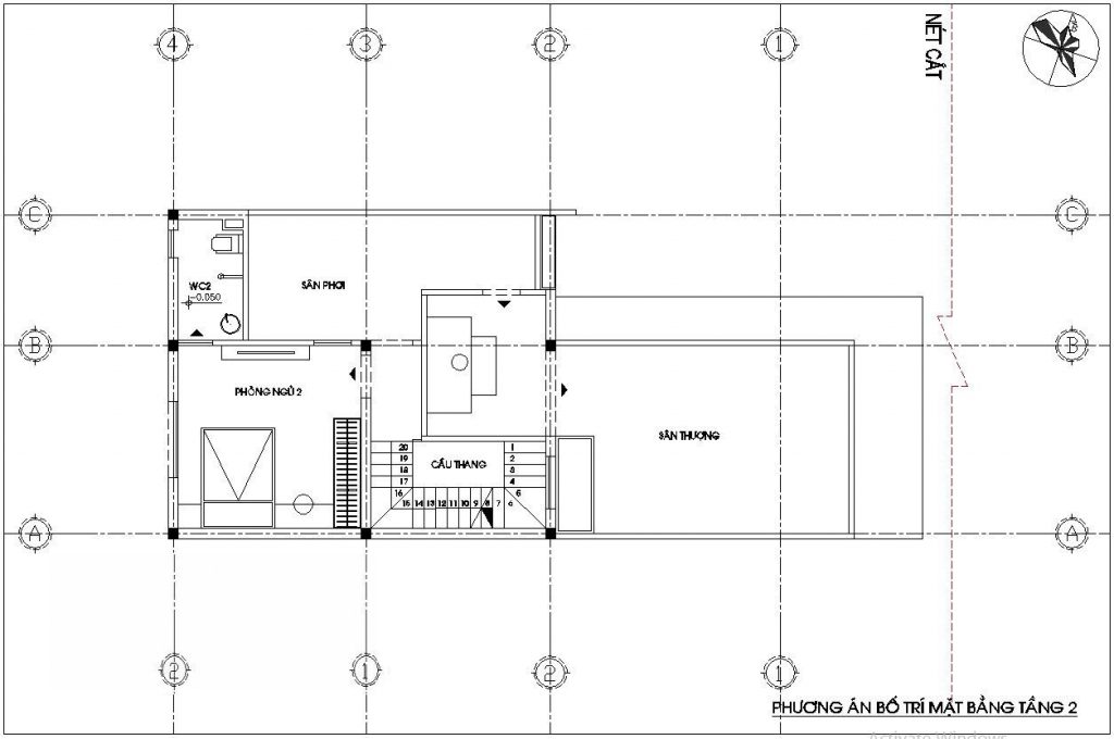
Thiết kế mặt bằng tầng 2
Thiết kế nội thất bên tron ngôi nha phố 1,5 tầng

Không gian phòng khách gọn gàng, xinh xắn nhờ cách lựa chọn nồi thất và trang trí phù hợp.

Phòng ngủ được thiết kế tủ âm tường để tiết kiệm diện tích

Gian bếp với thiết kế khá quen thuộc với nhiều gia đình.

Phòng tắm đủ cả bồn tắm cũng như vòi hoa sen.
Công ty xây dựng Nguyên chuyên tư vấn, thiết kế xây dựng nhà cấp 4 trọn gói hãy liên hệ với công ty chúng tôi để được tư vất thiết kế ngôi nhà đẹp nhất.
Công ty xây dựng Gia Lai cung cấp Dịch vụ xây nhà trọn gói, với đội ngũ kts, kỹ sư giỏi và thợ xây dựng có nhiều năm kinh nghiệm nhiều năm trong Nghề, sẽ mang đến cho quý gia chủ một ngôi nhà đẹp như ý.
Bài viết liên quan
- Mẫu thiết kế nhà cấp 4 nông thôn 120m2
- Mẫu thiết kế nhà cấp 4 trệt mái thái 3 phòng ngủ
- Tổng hợp mẫu nhà cấp 4 mái thái nông thôn
- Mẫu thiết kế nhà cấp 4 đẹp sang trong 100m2
CÓ THỂ BẠN QUAN TÂM
Tổng Hợp 52 Mẫu Nhà Cấp 4, Mẫu Nhà Cấp 4 Sân Vườn Mặt Tiền 5 Met – 10 Met 2026
Tổng Hợp 40 Mẫu Nhà Ống 1 Trệt 2 Lầu Mặt Tiền 4 met, 5 met, 6 met Thiết Kế Hiện Đại 2026
Tổng Hợp 44 Mẫu Nhà 1 Trệt 1 Lầu, Mẫu Nhà 2 Tầng Mặt Tiền 4 Met, Mặt Tiền 5 Met, Mặt Tiền 6 Met Mới 2026
Tổng Hợp 22 Mẫu Biệt Thự Vườn 2 Tầng Mái Nhật – Mái Thái Thiết Kế Hiện Đại
Mẫu Biệt Thự Vườn Mái Thái 2 Tầng Diện Tích 14x10m – Thiết Kế 4 Phòng Ngủ Sang Trọng & Tiện Nghi
Tổng Hợp 38 Mẫu Nhà Cấp 4 Mái Nhật Diện Tích 120m2 – 160m2 Thiết Kế Hiện Đại